Kate Campbell

I Found the One: Our Dream Oceanfront Fixer-Upper

You know those moments where your gut just knows before your head catches up? That was me, scrolling through house listings on a random weekend, half-searching and half-dreaming (as always!). Matt walked into the room mid-scroll and without even thinking, I looked up and said:

“I think I found the one.”

Turns out, I actually did.

Ever since I uprooted my life in Ontario to relocate on Vancouver Island four years ago, the dream of oceanfront living has been burning inside of me. Honestly, the dream felt like just that — a dream. Something that probably wouldn’t happen for a very, very long time…if at all.

But, this house — no, this place — is something special. It’s not perfect. In fact, it’s far from it, but that’s what I loved about it. I knew immediately that it had good bones, soul, charm, and the kind of potential that makes your hands itch to start tearing down walls and rebuilding dreams.

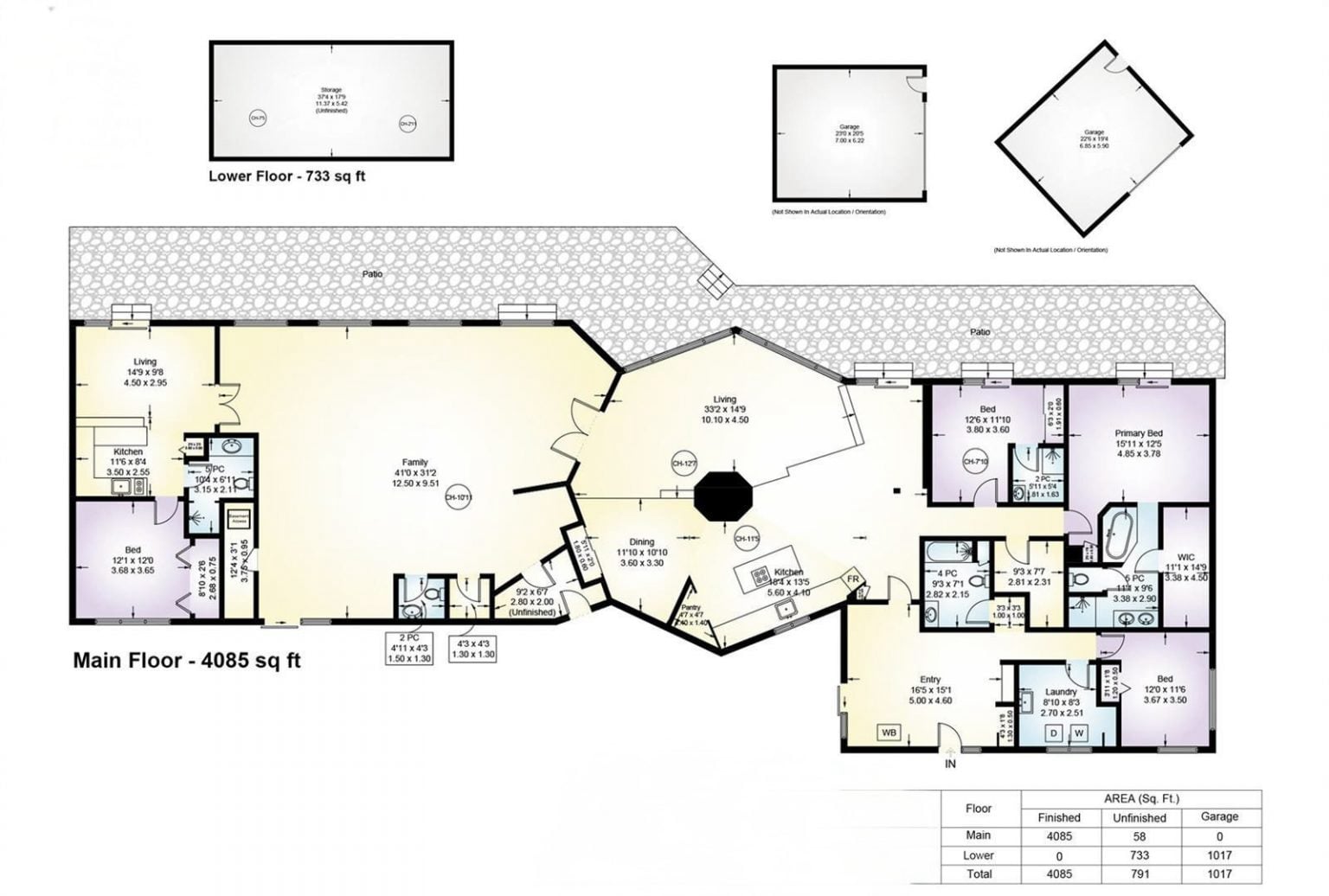
It’s 4,000+ square feet of mid-century vibes and funky angles, sitting right on the ocean. Yup — salt in the air, and waves crashing right in our backyard. It’s ours. And it needs a lot of love.

Kate Campbell


We probably got this house because a lot of other buyers just couldn’t see past the work. The price had been reduced—more than once—which usually means it’s scaring people off. And to be fair, it needs a ton of work and a lot of people can’t see past the peeling paint, outdated layout, or the sheer scale of what it would take to bring a place like this back to life.

It’s not just the money—it’s the vision, the knowledge, and the skills to actually pull off a massive renovation (or at least knowing you’ll be able to figure it out along the way!). I think that’s where most buyers tap out.

But this? This is exactly what I live for: to take something that’s been neglected and turn it into something extraordinary. Not everyone sees the potential in a fixer-upper, but I do. I think that’s a huge advantage—not just being able to imagine what it could be, but actually knowing how to make it happen.

That’s probably why this place sat on the market—and why it’s ours now.


Welcome to Our Next Big Project

This home is going to be a total transformation — the kind of project that will take vision, patience, grit, and about 47 gallons of coffee. And we’re bringing you along for every step.

I’m officially (re)starting my YouTube channel to document the process (think: full reno series, design plans, behind-the-scenes chaos, and some DIY wins and fails). You’ll also see tons of updates, real talk, and room-by-room reveals over on Instagram.

If you’ve ever wanted to know what it’s really like to take on a massive reno from the ground up (with a toddler in tow, a lot of power tools and right by the ocean), this is it.

A Quick Tour: How We Found It

From the outside, it might not scream “dream home” — yet. But take a look at this view 👇

Kate Campbell


📍 Nestled on the coast with 141 feet of walk-on waterfront access, the property is quiet, peaceful, and surrounded by tall trees and sea air. We’ve got a natural shoreline, space to breathe, and the kind of stillness that resets your nervous system in five minutes flat.

🏡 Inside? She’s got that retro lodge thing going on. Vaulted wood ceilings, giant beams, a central stone fireplace, and a layout that’s wild — and wildly exciting. It’s one of those homes where every room feels like a time capsule, just waiting for its moment to shine again.

kate campbell


💡 And yes, we’re keeping a lot of the character. We LOVE a good contrast between old soul and modern polish.

kate campbell
kate campbell

Why We Put in an Offer (and Got It!)

Here’s what sealed the deal for us:

-The light. Huge windows everywhere. Even on a gray day, the place glows.
-That layout. It’s a rancher (which I’ve heard most people love!) and the house runs lengthwise along the ocean, allowing for almost every room to have an ocean view. The layout is weird, it’s bold, and it’s going to make for the coolest before/afters.

kate campbell
kate campbell


-The location. I mean… the ocean is RIGHT THERE. Come on.

kate campbell

-The potential. This house wants to be amazing again. We’re going to make that happen.

We get the keys at the end of May and you better believe we’re showing up Day One with cameras, coffee, and a “to-do” list.

Let the Ideas Start Flowing…


The truth is, this isn’t just a house. It’s the beginning of something so much bigger — a place to raise our son, build new memories, and create content that shows what’s possible when you dare to tackle something this big. It’s messy, magical, and 100% aligns with who I am.

So here we go. Follow along as we bring this beauty back to life — one room, one wall, and one ocean view at a time.

Let’s build something unforgettable.