Inside the Beach House: Layout, Flow & Life on the Waterfront

November 7, 2025

Kate Campbell

Inside the Beach House: Layout, Flow & Life on the Waterfront

When we first saw this house, I knew right away — this was IT. The view, the land, the quiet — it just had this feeling. Sure, it needed work (a lot of it), but that’s kind of my thing. After years of restoring heritage homes in Ontario, I was craving something new — a different kind of project, one that felt lighter, calmer, and more connected to nature. So when this 4,000-square-foot oceanfront fixer-upper came up on Vancouver Island, I knew I’d found the next chapter. With 140 feet of walk-on waterfront, views of Denman and Tree Island, and that calm west coast energy I’d been dreaming about.

If you’ve been following along on YouTube, you’ve probably seen glimpses of the Beach House — the demo chaos, the stunning sunrises, the ocean peeking through every window. But what you haven’t really seen yet is how this place *flows*. That’s why I wanted to write this post — to share the actual layout and help you picture how this house really works: how the rooms connect, where the magic happens, and why I fell in love with it in the first place.

From the street, you’d never guess how sprawling it is. Somewhat hidden by trees and two detached garages, the home sits low on the property, with the land sloping gently toward the water.


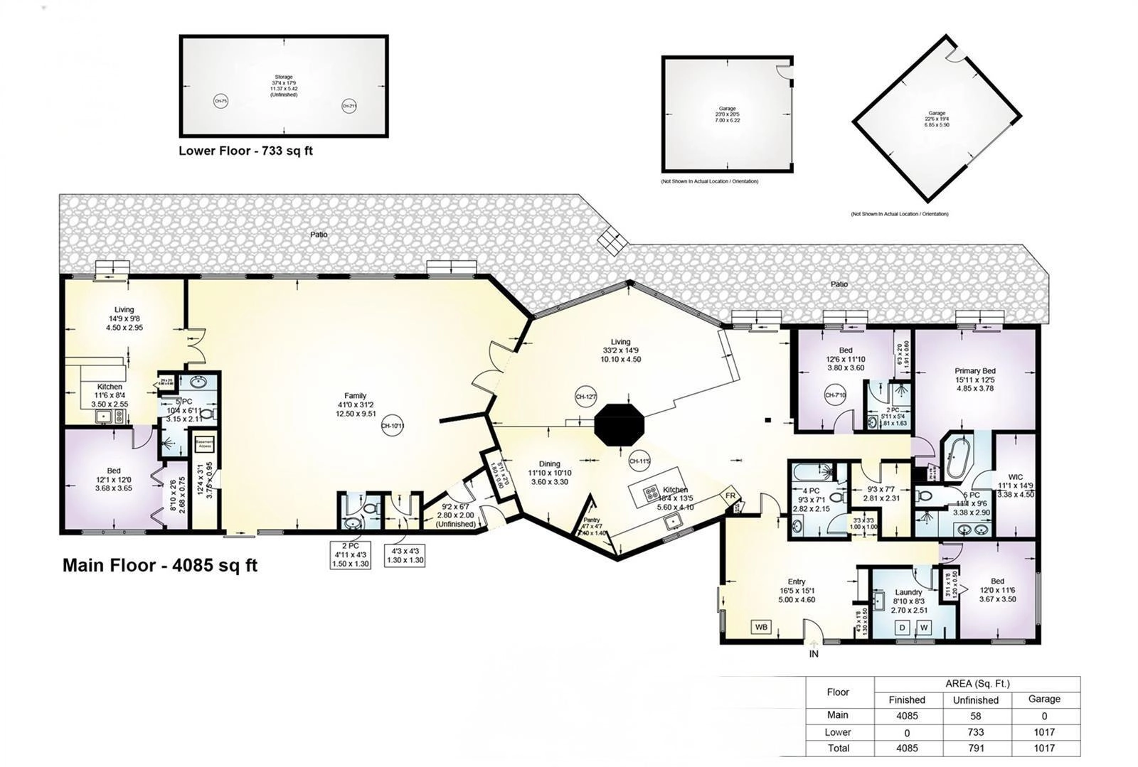
Inside, the layout stretches along the water, with almost every room taking in that incredible view. Almost every room has a view — and every view is a reminder of why this place is so special.

My favourite room is the Octagon Room — it’s such a unique, unexpected shape and it’s the kind of space that instantly makes you imagine cozy reading corners, morning coffee, and late-night chats with friends while listening to the waves. It’s home to the kitchen, dining space and a beautiful sunken living room, all centered around a floor-to-ceiling stone fireplace, which immediately feels like the heart of the home.

Down the bedroom wing, the primary suite sits privately at the far end of the house. It’s got a five-piece ensuite, walk-in closet, and ocean views right from the bed (dreamy, right?!).  


On the other end of the house, there’s a fully self-contained one-bedroom in-law suite too — complete with its own kitchen and bathroom — plus a huge studio space that could be anything from a gym to a workshop to a creative space (we were told in the past it was used as a dance studio!). This space used to be the home of an indoor pool (the pool is still intact under the floor - kinda creepy!).


Seeing the floor plan really helps everything click. You start to understand how the house functions (or doesn’t function). The layout is one of the main things that we want to change and rearrange to make this house function and flow for our family. It’s a home with so much personality and potential, and every time I walk through it, I see another layer of what it could become.  


This renovation feels different than any I’ve done before. I’m not racing to the finish line. I’m working at my own pace, focusing on my growing family, my health, and the joy of being *present* in the process. For once, it’s not about proving anything — it’s about creating something lasting. This house isn’t just a project. It’s the foundation for our forever home, and the life we’re building here by the ocean. 

Kate Campbell
Kate on HGTV

Holmes Inspection
Disaster Decks
Deck Wars
Holmes on Homes
Home to Win
Holmes in New Orleans
Canadian Handyman Challenge
Custom Built
Decked Out
Family Home Overhaul